Make Space Initiative

Make
Space
Initiative

Mount Clare, 21223

This initiative is ongoing and in progress

This Make Space initiative takes place in the Southwest corridor in Baltimore City, in the Mount Clare Neighborhood. This project is a scattered site development project that spans a 4-5 block radius, including 18-20 residential units, green spaces, commercial buildings, and industrial spaces. This housing model sets out to prove how intentional, collectively-owned communities can create models of sustainability, specifically in distressed communities.

Vacant homes on McHenry Street in the Mount Clare neighborhood.

The goal is that once the majority of our residential units are sold, a collective entity will be formed by residents with the intention of collectively owning some of the community gathering spaces and green spaces Make Space is developing alongside the housing units. The majority of our residential units are sold at below market rate to participants that complete our specialized homebuyer training. Through the assistance of public and private grants and subsidies, we are able to pass along significant cost savings benefits to future home owners.

Renderings for 1612 McHenry

Top Right: Exterior
Top Left: Entry
Bottom Left: Living Room
Bottom Right: Studio

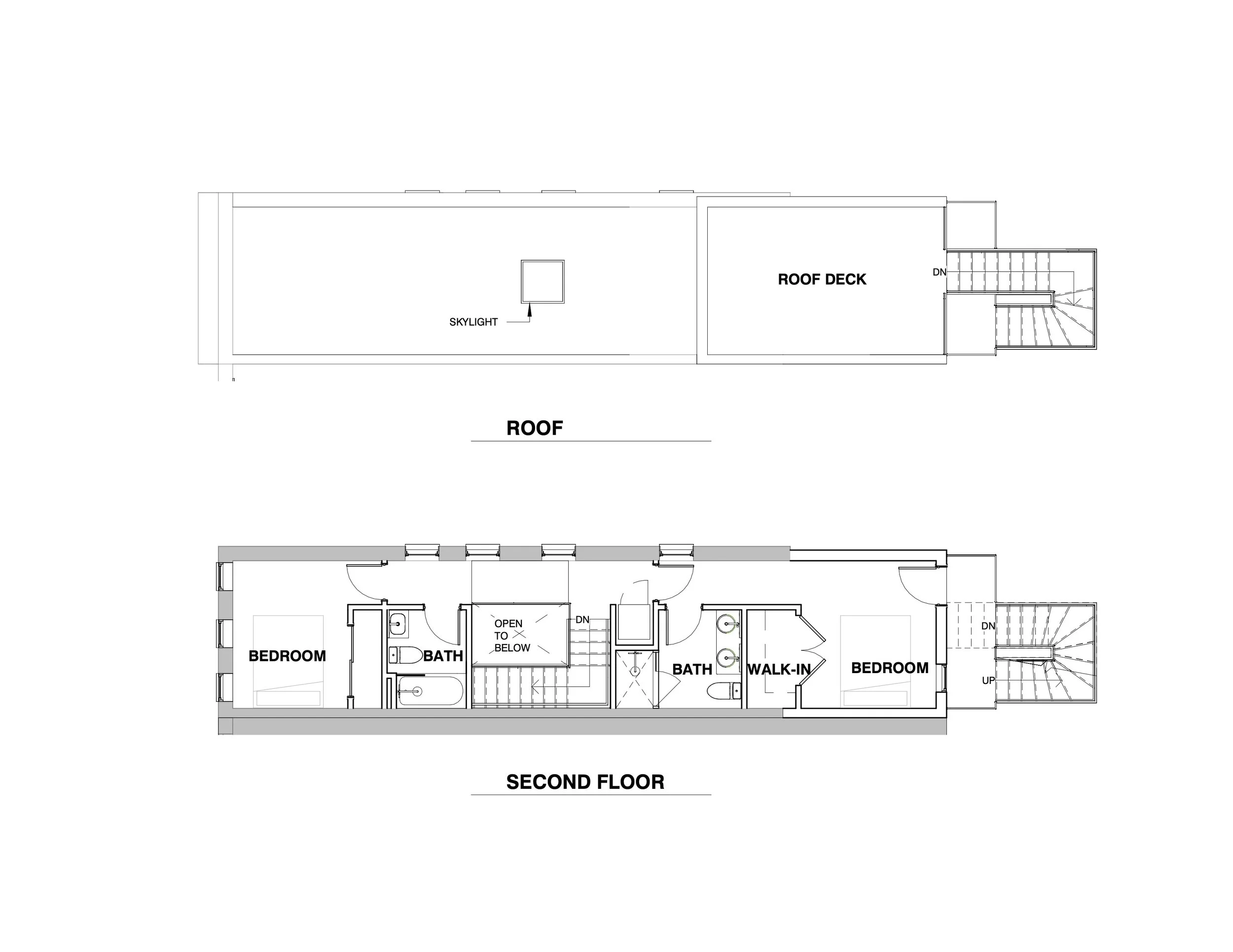
Floor plans for 1612 McHenry Street

Interior construction at
1628 and 1630 McHenry Street

Community walking tour

Interior construction at 1628 and 1630 McHenry Street

Inventory